Sasu Marila Architects
Helsinki University Central Library, extended invited competition, 2008, 3rd prize
Asikkala Pasolanharju area town plan competition, 2012, shared win (with Kari Nykänen / M3 Architects)
We visited nearly completed Villa in Rosala Archipelago. Main building and guesthouse partly hidden behind pines. Nice makeshift sauna by Nikke! Rosala, 2011-12
The work for Asikkala Pasolanharju town plan is under way.
The area for around 200 families and business area of same size will be built during the next ten years,
Ateljee houses site in Mankkaa, Espoo, 2011-2012
Kirkkojärvi School open competition, Espoo, 2005, awarded
more...
Kerava Water Tower competition, proposal, 2002
Manhattan Grid Run 2012
Selected projects:
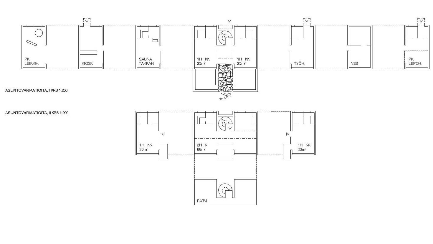
Housing H, Espoo, 2002-03
3 One family Houses, Espoo, 2010-12
Pavillion competition proposal, Sweden, 2004
Two houses, Espoo, 2005
University of Jyväskylä, Student Union building extension, competition proposal, 2000, awarded
Lappeenranta University Campus competition proposal, 2003 (together with Sakari Forsman and Tuulikki Raivio)
Lund Cathedral Centre competition, proposal, 2004 (together with Sakari Forsman and Tuulikki Raivio)
House NS, Espoo, 2003-04
Finnish Pavillion Shanghai Expo 2000 competition, proposal, 2008
Wood Pavillion competition, Sweden, 2007, awarded
St Lawrence Chappel competition, Vantaa, 2004 (together with Tuulikki Raivio)
Forssa Loimijoki two housing areas competition proposal, 2003, awarded